Téléphone:
(514) 792-3533
(855) 585-5333
Commencez à taper & appuyez sur "Entrée" ou "ESC" pour fermer
fr
Français
Anglais
Accueil
Produits
Nos produits
Convertisseurs
Profilés d'aluminium
Accessoires d'aluminium
Embouts
Diffuseurs
Bandes de DEL
Raccords rapides
Supports
Luminaires assemblés
Contrôleur
Canopées
Fils
Croquis d'assemblage
Demande de soumission
Services
Nos services
Nos formations
Portofolio
Portefeuille de projets
Idées et réalisations
Showroom Virtuel
Clide
Connexion
Inscription
Connexion
Nos croquis d'assemblage
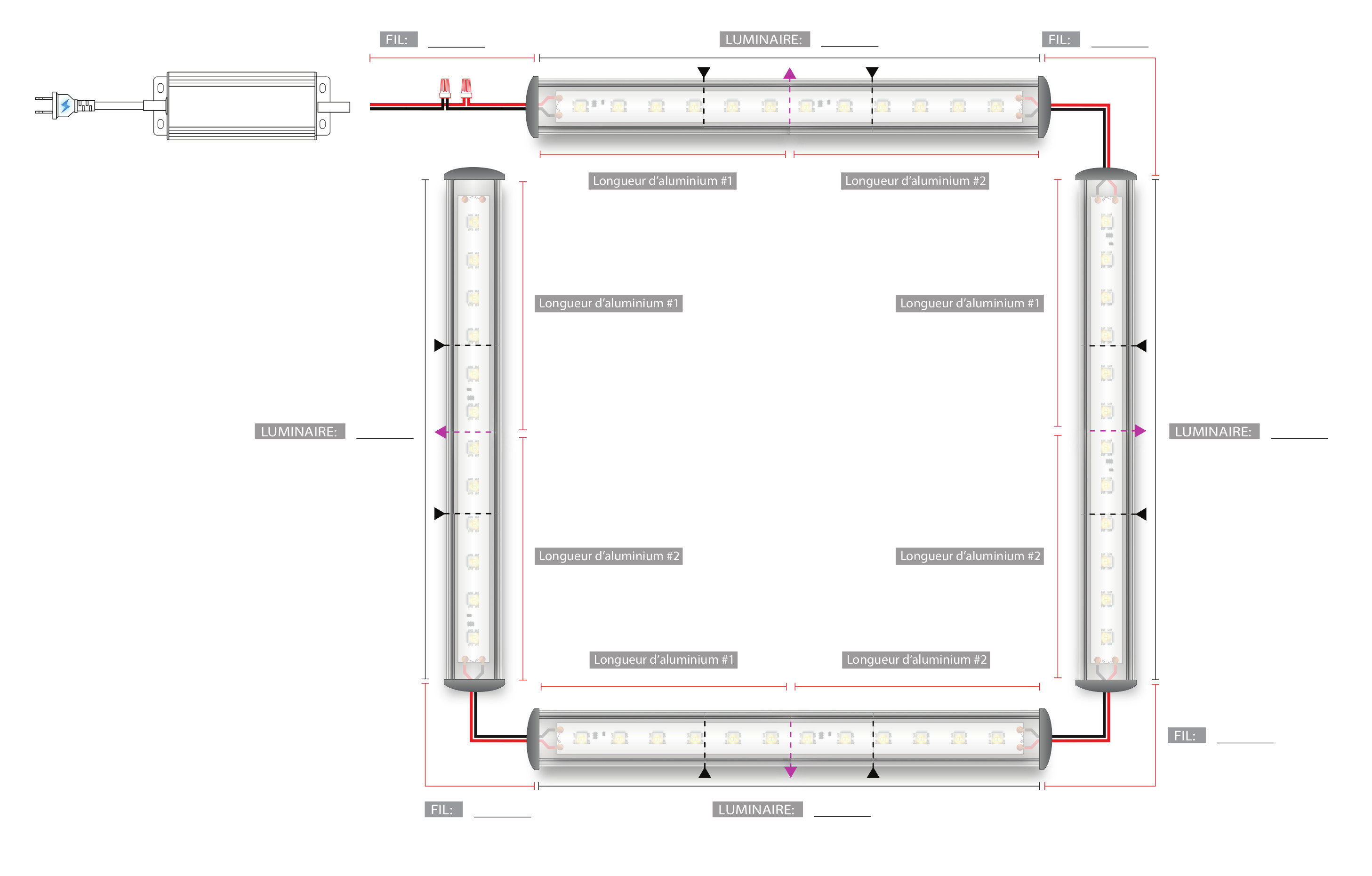
Croquis d'assemblage : RAS-8
Retour
Details
Nombre de conducteurs :
1
Forme :
Shape en rectangle
Nombre de barres :
4
Lieu d'assemblage :
Par le client
Sortie de fil à la fin des dernières barres :
Oui
Sortie de fil à la fin des dernières barres :
Non
Type de conecteur Entre le driver les barres :
Fil simple (considérer fil simple = marettes)
Type de conecteur Entre les profilés d'aluminium d'une même ligne :
Soudure des barres
Type de conecteur Entre les lignes :
Fil simple (considérer fil simple = marettes)